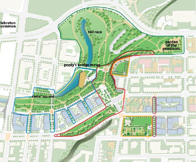
Le plan de district de la zone de l’Escarpement de la ville d’Ottawa illustre l’importance de créer des milieux de vie durables. Le plan souligne et favorise le développement novateur tout en prévoyant la conservation du patrimoine, l’aménagement de parcs, d’espaces ouverts et de jardins communautaires, ainsi que l’accès au transport en commun.
Ce plan est le fruit d’un processus consensuel. L’équipe responsable a recueilli les suggestions de groupes du voisinage et du comité consultatif du Plan et mené des entrevues auprès des intervenants et de la population en général, et en a tenu compte pour le processus de planification. Le résultat : une vision qui permettra à ce secteur de tirer profit de possibilités futures en créant une assise solide pour de nouveaux projets de développement et de nouveaux parcs, ce qui permettra de mieux intégrer la zone de l’Escarpement au centre-ville, aux quartiers voisins, ainsi qu’aux espaces ouverts et aux voies navigables à l’échelle nationale.
Enfin, le Plan a été approuvé par la Ville d’Ottawa le 10 décembre 2008.